What Problems an Eco-Friendly Grease Separator Actually Solves
Eco-Friendly Grease Separator solutions have moved from "optional accessory" to "core kitchen infrastructure." At MEA, we build for the way commercial kitchens truly run - high heat, heavy volumes, stringent inspections, and very little room for error. This article breaks down the real-world problems our enclosed, full-disposal approach eliminates, and why operators choose MEA when uptime, hygiene, and budgets all matter at once.

1) Odor, Exposure, and Compliance: Stop Problems Before They Start
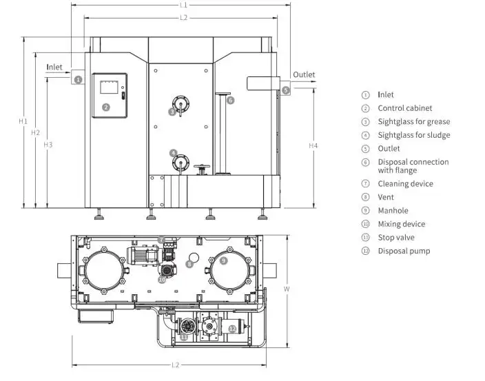
Kitchen odors are rarely cosmetic; they're early warning signs. Escaping smells indicate poor containment and potential health risks. MEA's Eco-Friendly Grease Separator closes that loop. The fully enclosed body prevents vapors from drifting into prep areas, and a DN100 vent port balances pressure while maintaining safe, controlled ventilation. Staff aren't inhaling effluent, guests aren't noticing "mystery smells," and managers aren't scrambling for last-minute fixes before inspections.
FOG (fats, oils, and grease) compliance is the other silent stressor. When grease rides the drain line, it hardens, narrows flow, and triggers backups - followed by fines and emergency service calls. Our separator intercepts FOG at the source and holds it in a sealed path. Double sightglasses make checks fast and intuitive: glance, record, act. Teams can respond before thresholds are reached, keeping maintenance predictable and audits straightforward.
Durability backs up the promise. Stainless steel construction with a 2.5 mm chamber thickness resists corrosion and impact in high-load settings. Shift after shift, the unit stays tight, stable, and easy to clean. That resilience translates into fewer outages and a calmer operation - especially during weekend rushes when service providers are scarce.
- What "Full Disposal" Means in Practice?
Many "green" separators still depend on manual scooping - messy, slow, and risky. MEA's design integrates separation, agitation, cleaning, and sealed disposal in one enclosed system. A DN65 disposal connection with a pump and cutting vanes breaks down and evacuates accumulated grease without open buckets or exposed handling. Result: lower exposure for staff, fewer slip hazards, and a consistently clean plant room.
2) Labor and Downtime: Make Maintenance the Easy Part
In a busy kitchen, every extra step compounds. MEA's Eco-Friendly Grease Separator reduces routine friction so crew members can return to service quickly. An integrated cleaning device and agitator loosen deposits, and our patented easy-clean geometry prevents awkward, time-consuming disassembly. When direct access is needed, a 400 mm manhole simplifies safe entry. Most days, though, visual checks via the twin sightglasses are all that's required - fast, clean, and to the point.
Control is flexible by design. Switch between manual and automatic modes to match cleaning cycles with real-world flow. During festivals or hotel banquets, increase frequency. When demand softens, scale back. This adaptability avoids two costly extremes: under-servicing that leads to clogs, and over-servicing that wastes labor and consumables.
✅ Quick Wins For The Ops Team
• Enclosed running keeps odors in check and floors cleaner during service.
• Patented easy-clean features reduce hands-on time for technicians.
• Central control cabinet standardizes settings, so new staff ramp up faster.
• Centrifugal cleaning pump accelerates rinse cycles and clears debris efficiently.
- Retrofitting Without the Drama
Many sites aren't new builds. That's why footprint and layout matter. MEA systems slot into centralized kitchen drainage with minimal disruption. The DN65 disposal line integrates cleanly, and the DN100 vent maintains stable operation. The compact, enclosed build fits tight plant rooms, which is essential in urban sites where every square meter is contested. Whether you're upgrading a single restaurant or a campus kitchen, the modular layout helps installers - and general managers - stay on schedule.

3) Cost, Risk, and Reputation: Small Leaks Become Big Bills
Clogged drains aren't just inconvenient; they're expensive. Emergency pump-outs disrupt service, damage floors and equipment, and can trigger negative reviews or even regulatory action. By intercepting and removing FOG on a defined schedule, MEA reduces those "middle of Saturday night" callouts that blow up labor budgets and morale.
Think of value in three buckets. First, fewer backups directly lower plumbing and downtime costs. Second, enclosed, tool-guided maintenance trims PPE usage and keeps staff out of harm's way. Third, steady, compliant performance protects revenue by preventing closures and fines. Over the life of the unit, these incremental gains add up - especially across multi-site portfolios where consistency is everything.
Where does an Eco-Friendly Grease Separator deliver the most return?
• High-load restaurants and food courts that demand constant flow
• Central kitchens requiring clean processes and traceable routines
• Hotels, hospitals, and campuses where odor control is non-negotiable
• Food factories balancing throughput with environmental targets
- Built For Operators, Not Just Spec Sheets
Specs matter, but usability wins the day. MEA emphasizes straightforward service points, robust materials, and predictable control logic. Stainless steel construction resists the knocks of daily production. Integrated separation and agitation keep internals clean longer. The double sightglasses eliminate guesswork. The result is a calmer back-of-house, a tidier plant room, and fewer late-night emergencies. It's not flashy - it's simply engineered for the way kitchens really run.

Why MEA's Approach Stands Out?
Plenty of systems promise sustainability; fewer deliver it without adding complexity. MEA's Eco-Friendly Grease Separator is engineered so environmental performance and operational simplicity reinforce each other. Enclosed handling improves hygiene. Sealed disposal shortens maintenance windows. Flexible control adapts to fluctuating demand. And the rugged build takes years of punishment without drifting off spec.
If your current setup relies on manual scooping, frequent pump-outs, or "hope and a schedule," you're paying a hidden tax - in labor, in risk, and in reputation. Upgrading to a sealed, full-disposal solution addresses the root causes: FOG migration, exposure, and inconsistent maintenance. That's the difference between reacting to crises and running a kitchen that simply... flows.
Ready To Fix FOG - And Keep It Fixed?
Let's size an Eco-Friendly Grease Separator for your site. MEA will review your load profile, space constraints, and compliance targets, then recommend settings and training that fit your operation - not the other way around. Book a quick consultation with MEA to cut odors, prevent clogs, and protect your brand - without slowing service.